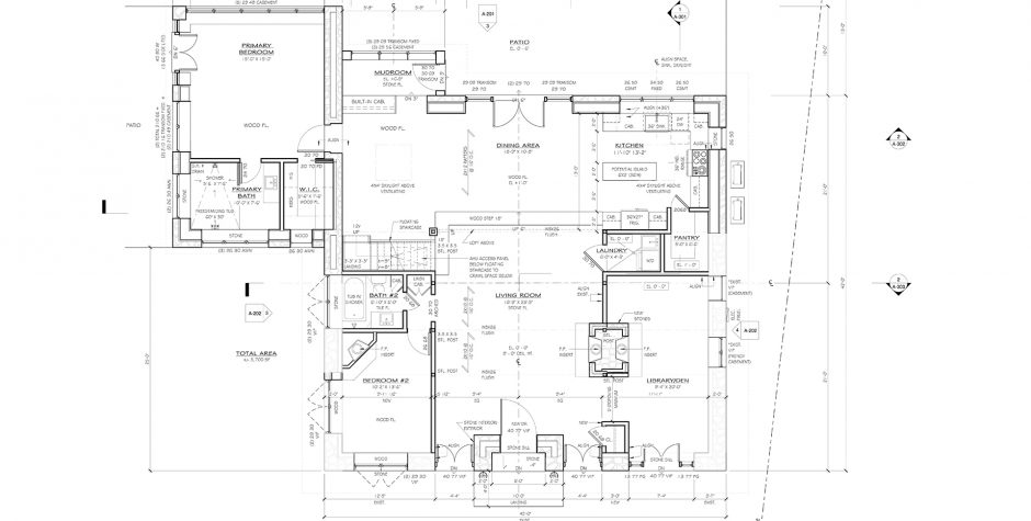
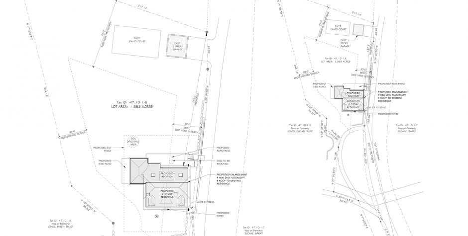
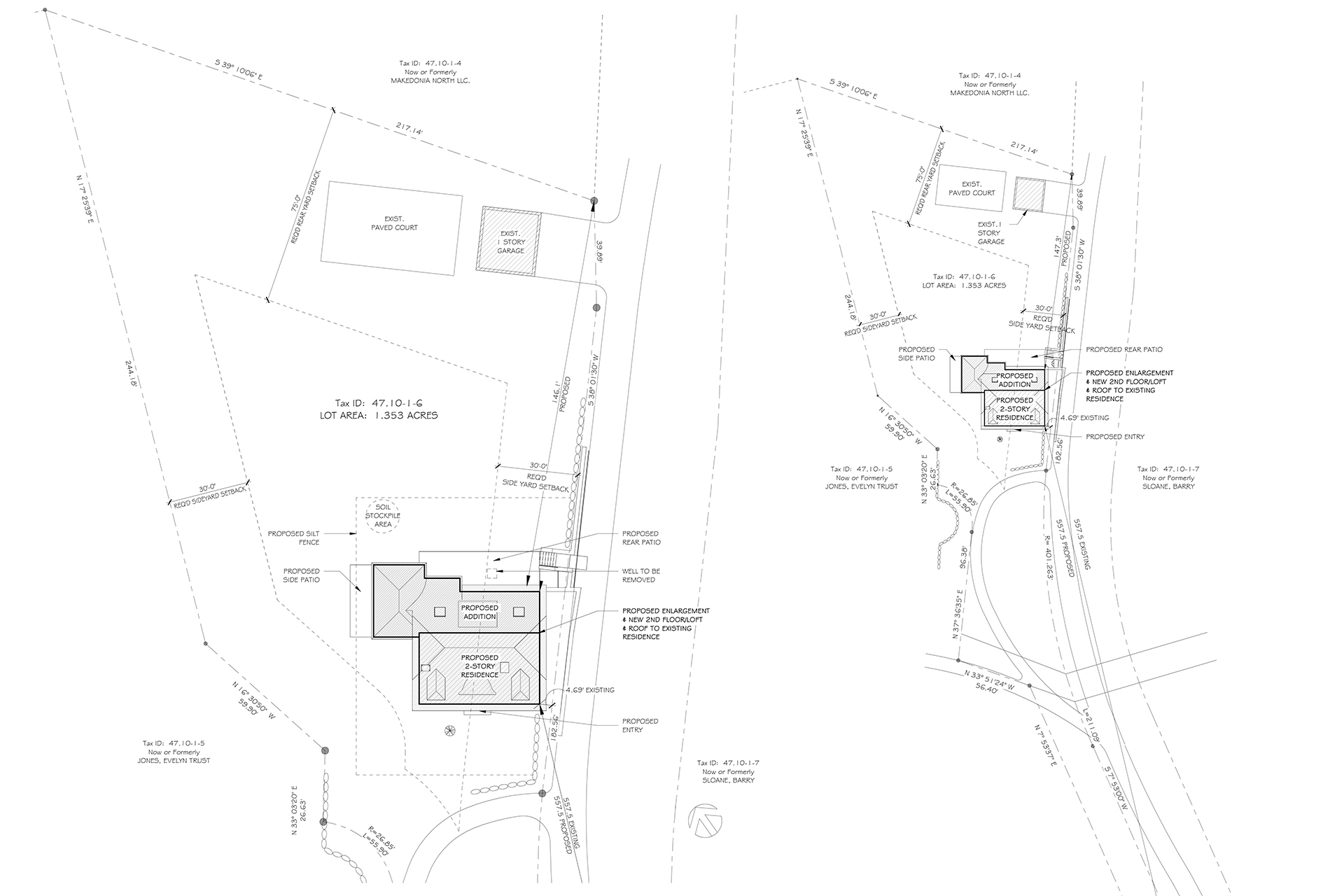
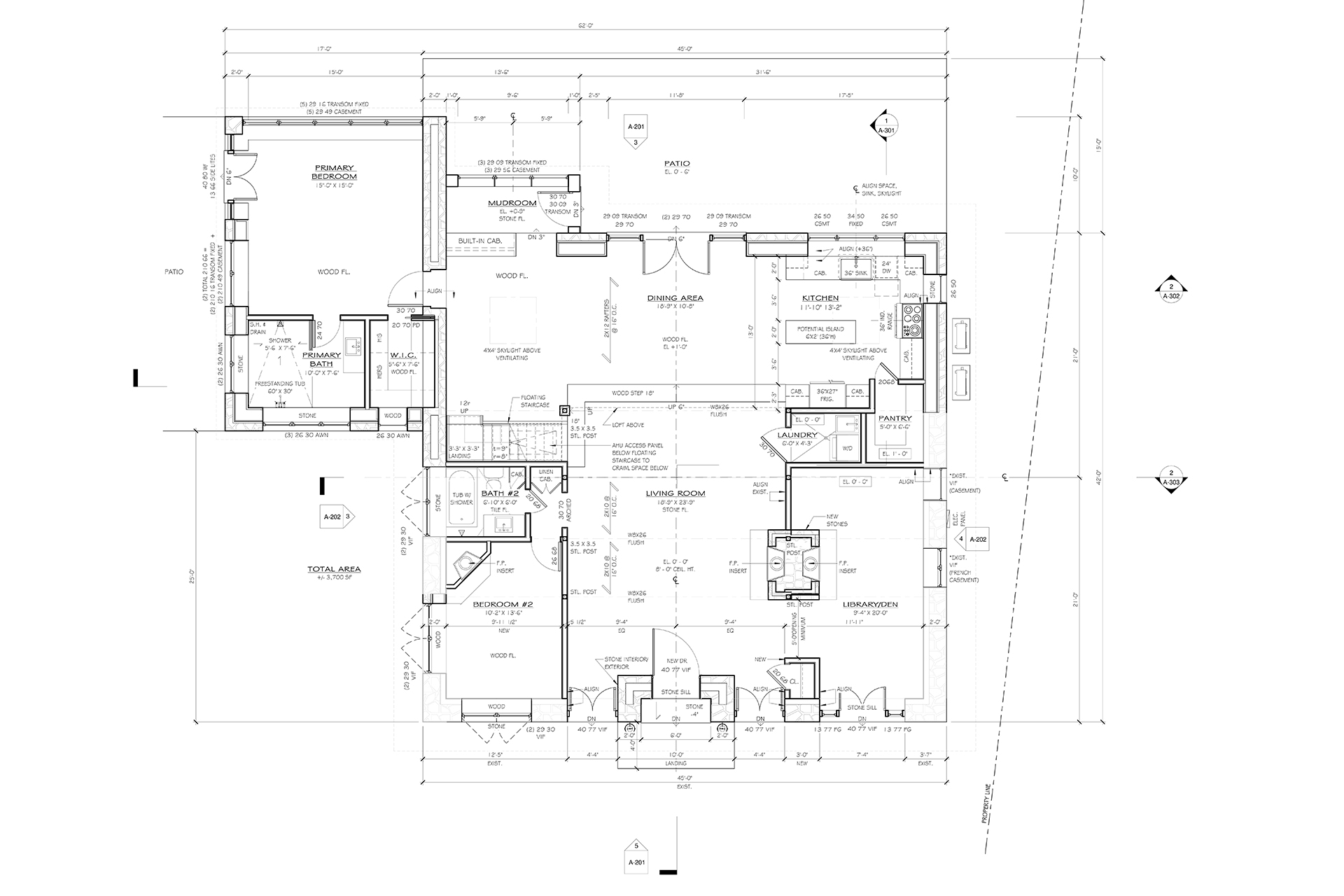
Project Description
Design development and 3D modeling for a charming stone cottage residence in rural New York set on a large 50+ acre site with private ponds. The 3D model and design package went through multiple different iterations incorporating rustic elements with modern functionality. Detailed plans and visualizations were developed to ensure seamless construction and integration with the existing stone structure.









