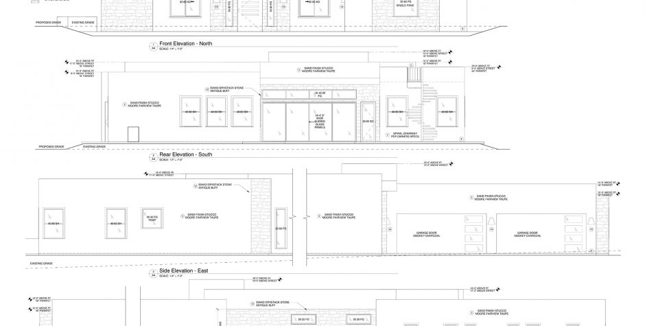
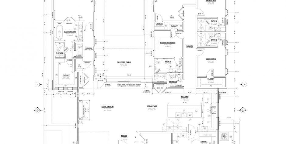
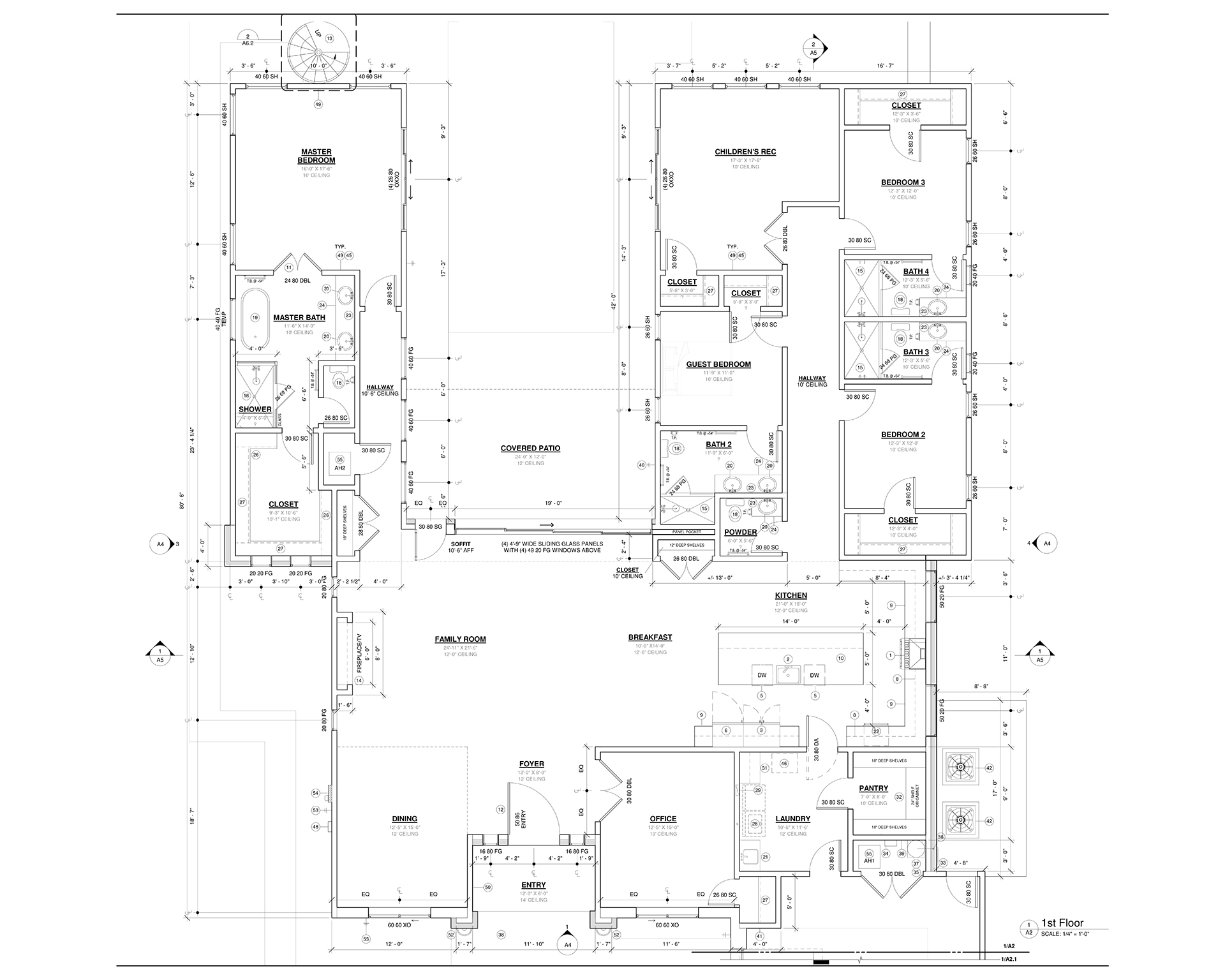
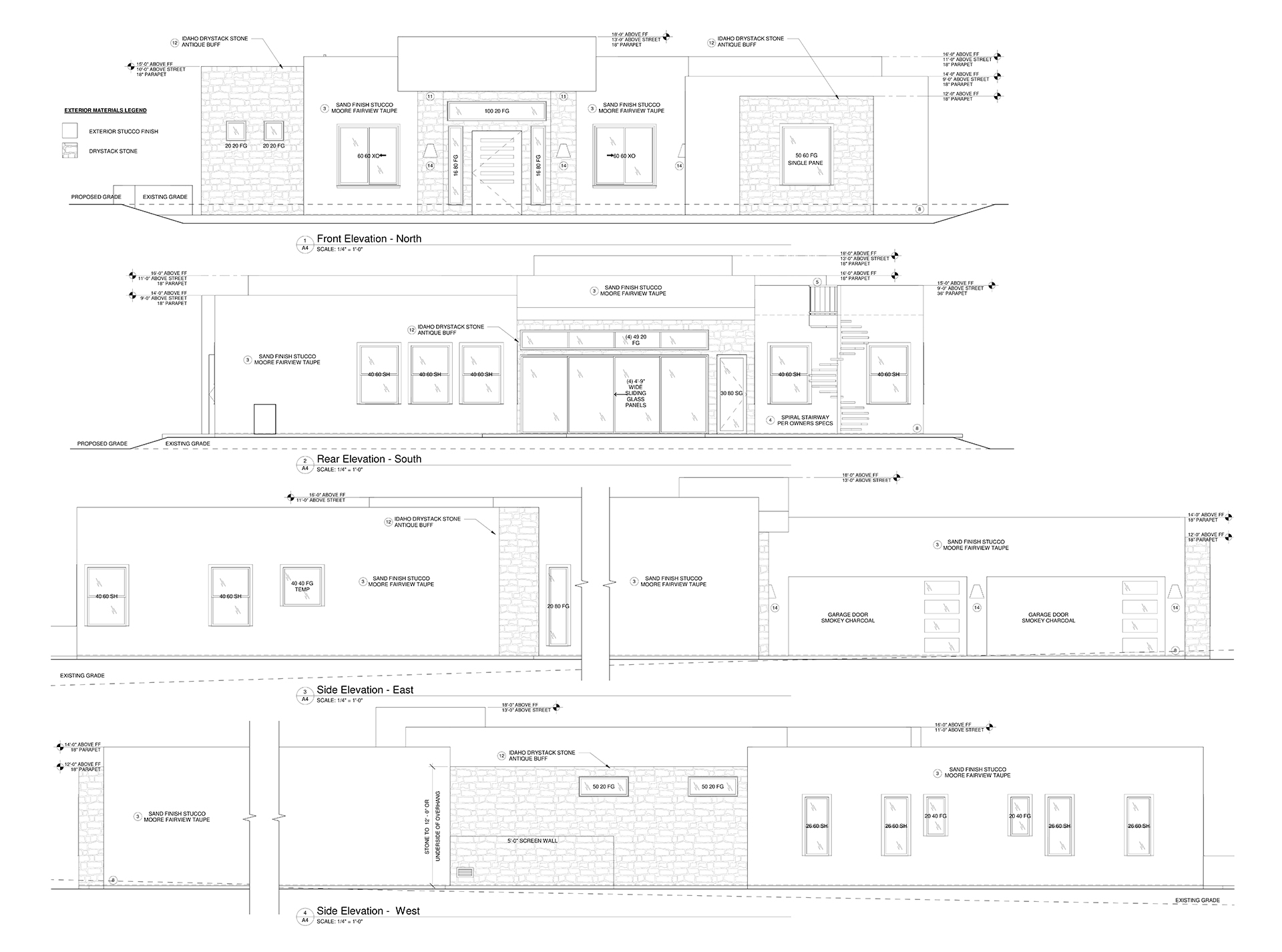
Project Description
Development of comprehensive architectural plans and 3D model for a sleek modern home in the Greater Phoenix Area with landscape tailored to the Arizona landscape. The project focused on detailed construction documentation and 3D visualizations that highlight desert-adapted features, open central patio, flat adobe aesthetic and natural vegetation.












