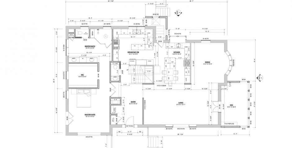
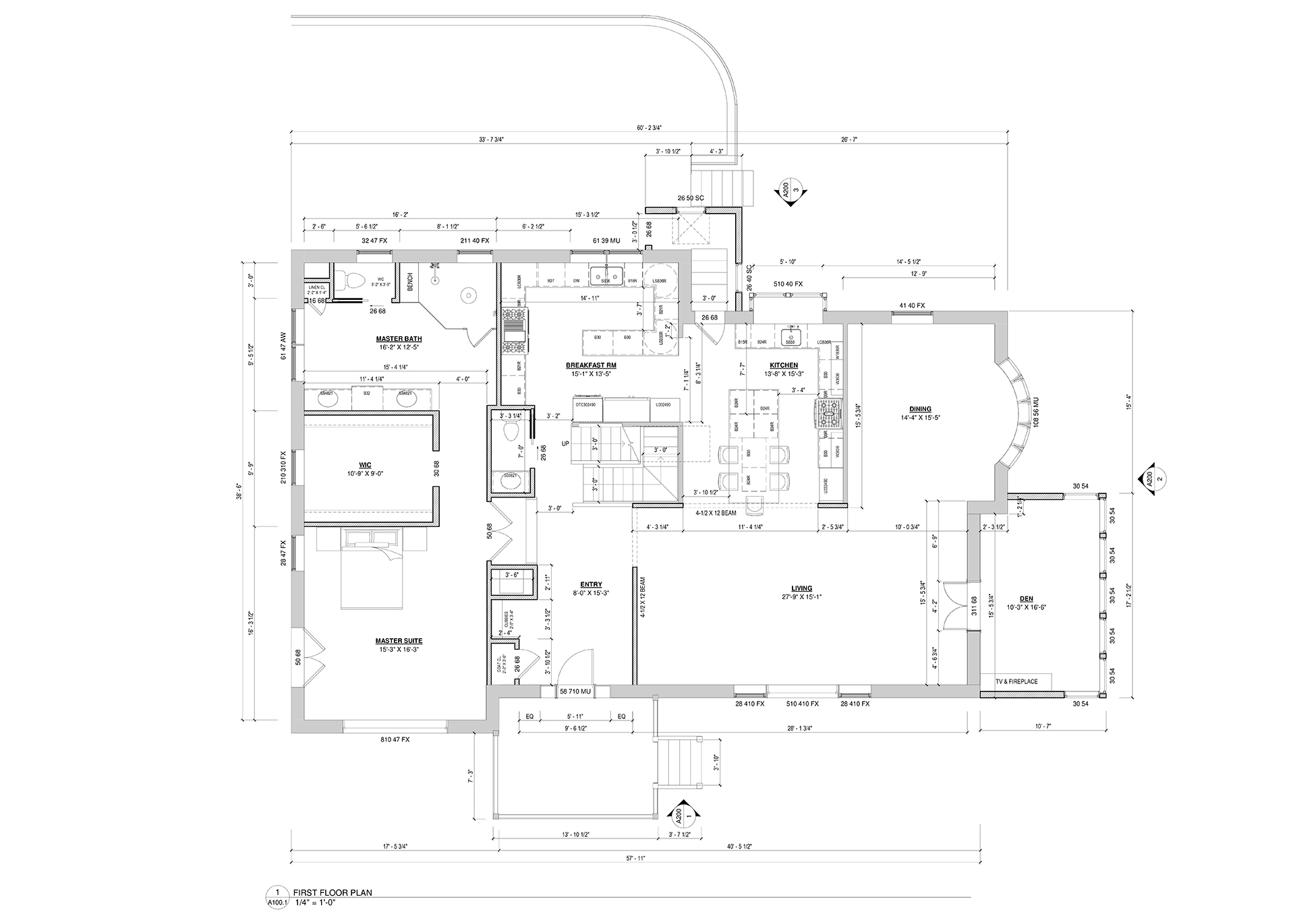
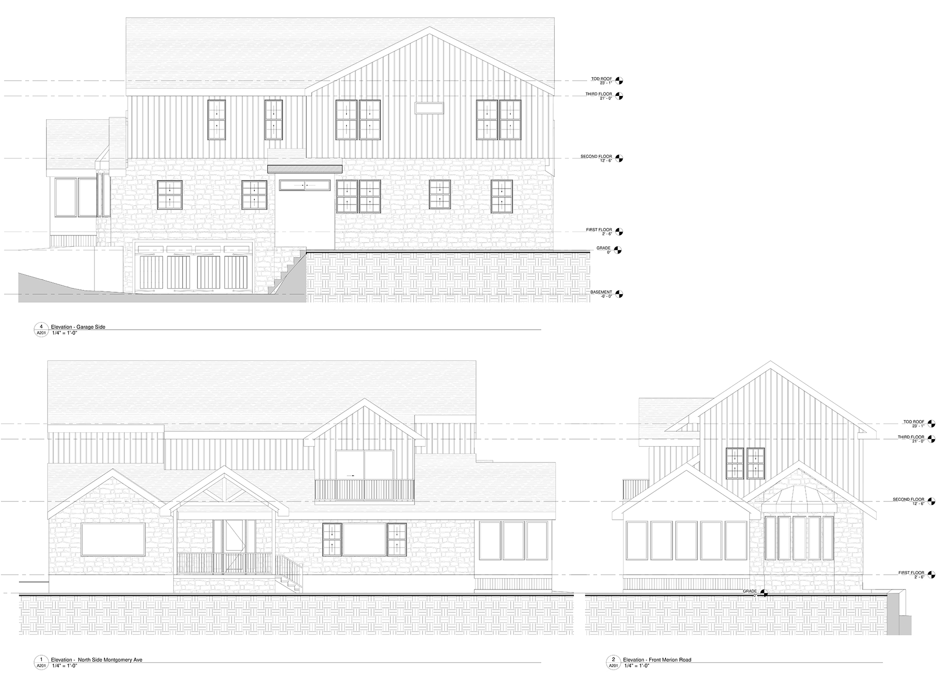
Project Description
Exploration of multiple modern extension concepts for a residential property in Merion, PA, including 3D models utilizing difference construction styles and materials. The design options emphasized the large side and 2nd floor additions that have a visual cohesion with the existing building exploring both contemporary and modern options.










