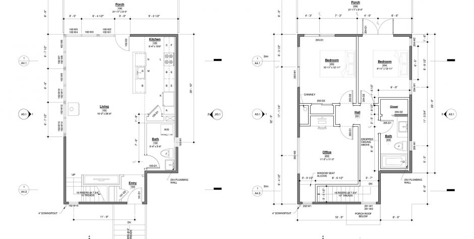
Project Description
Design development and documentation of a sleek modern cabin in a desert environment, featuring 3D models and construction plans. The design integrated minimalist aesthetics to create a serene retreat harmonizing with the arid Arizona landscape.






