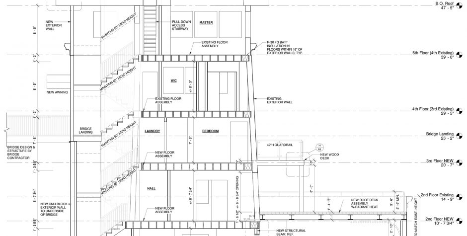
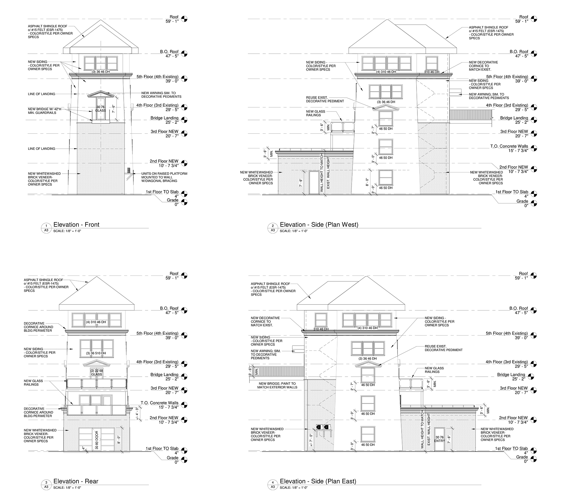
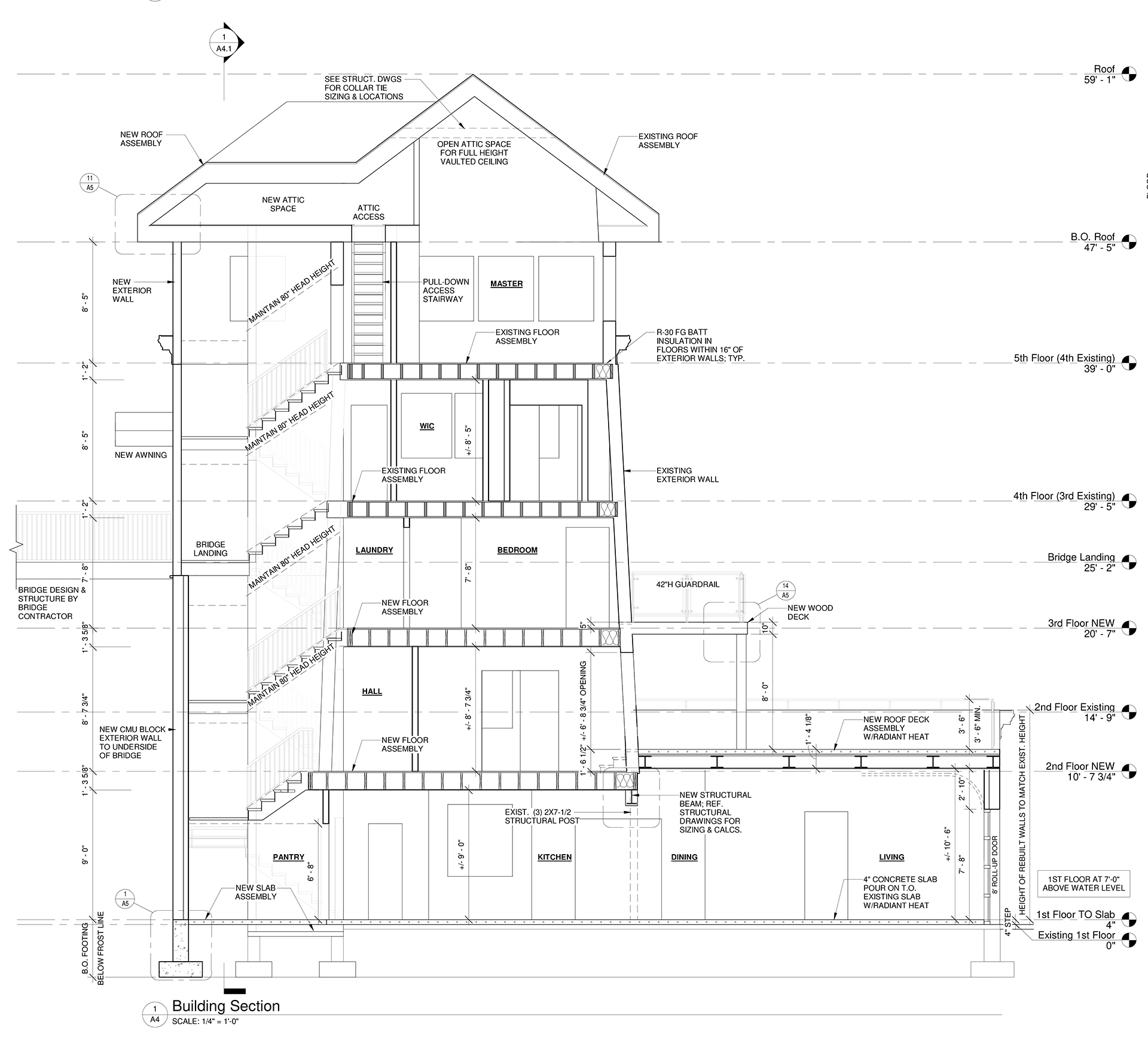
Project Description
Comprehensive adaptive reuse and conversion of a historic lighthouse on Chesapeake Bay into a private residence, preserving iconic exterior features while creating fully modern interiors. Full architectural design services through construction documentation included extensive 3D modeling and visualizations to address challenging waterfront access, structural reinforcement, and integration with the surrounding water. Detailed MEP systems and radiant slab flooring were incorporated for year-round comfort in this unique coastal setting. The project transformed an isolated maritime landmark into a striking, livable home that honors its heritage and embraces dramatic bay views.









