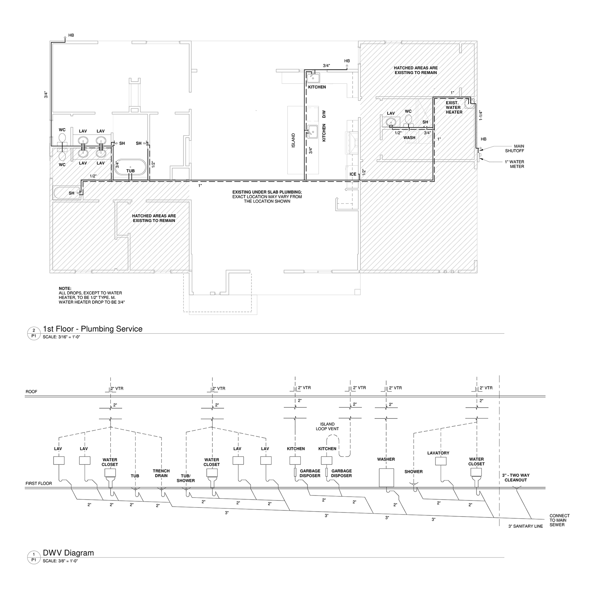
Project Description
Detailed documentation for mechanical, electrical and plumbing systems in a residential project. The plans ensured compliance with building codes and efficient integration of essential utilities for safe, functional home operations.







