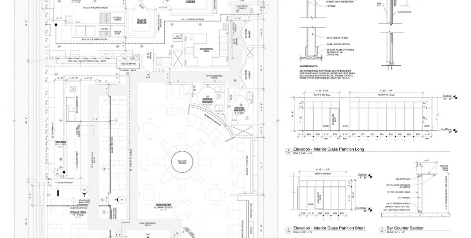
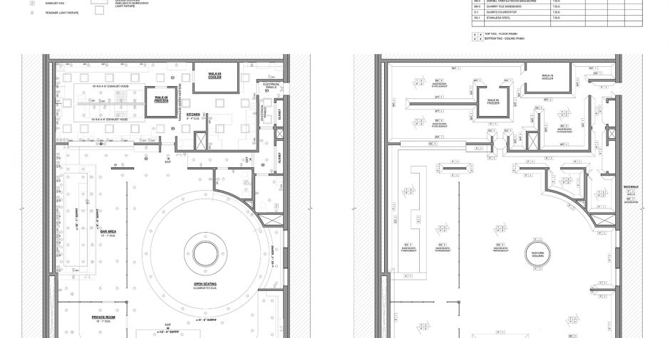
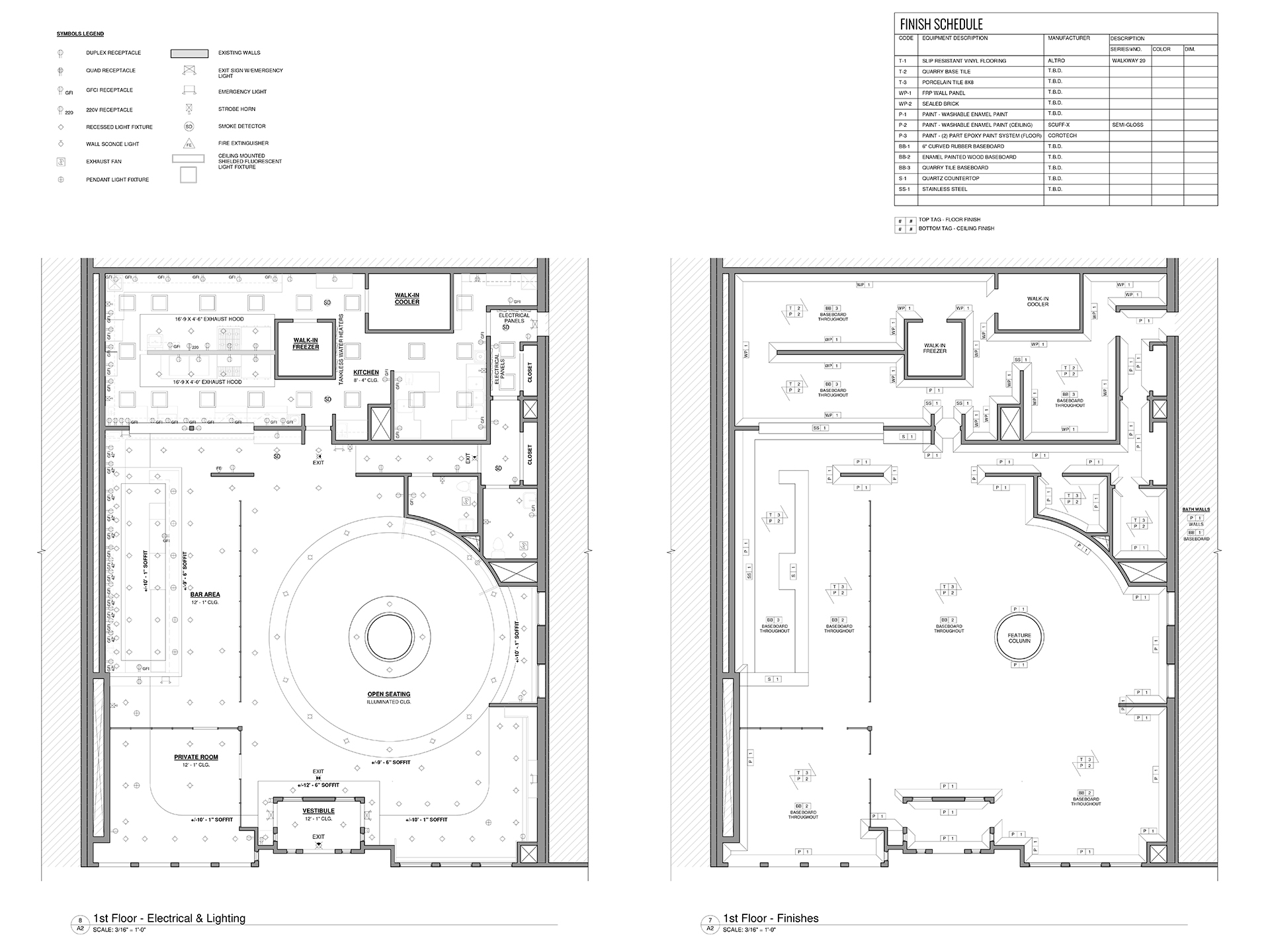
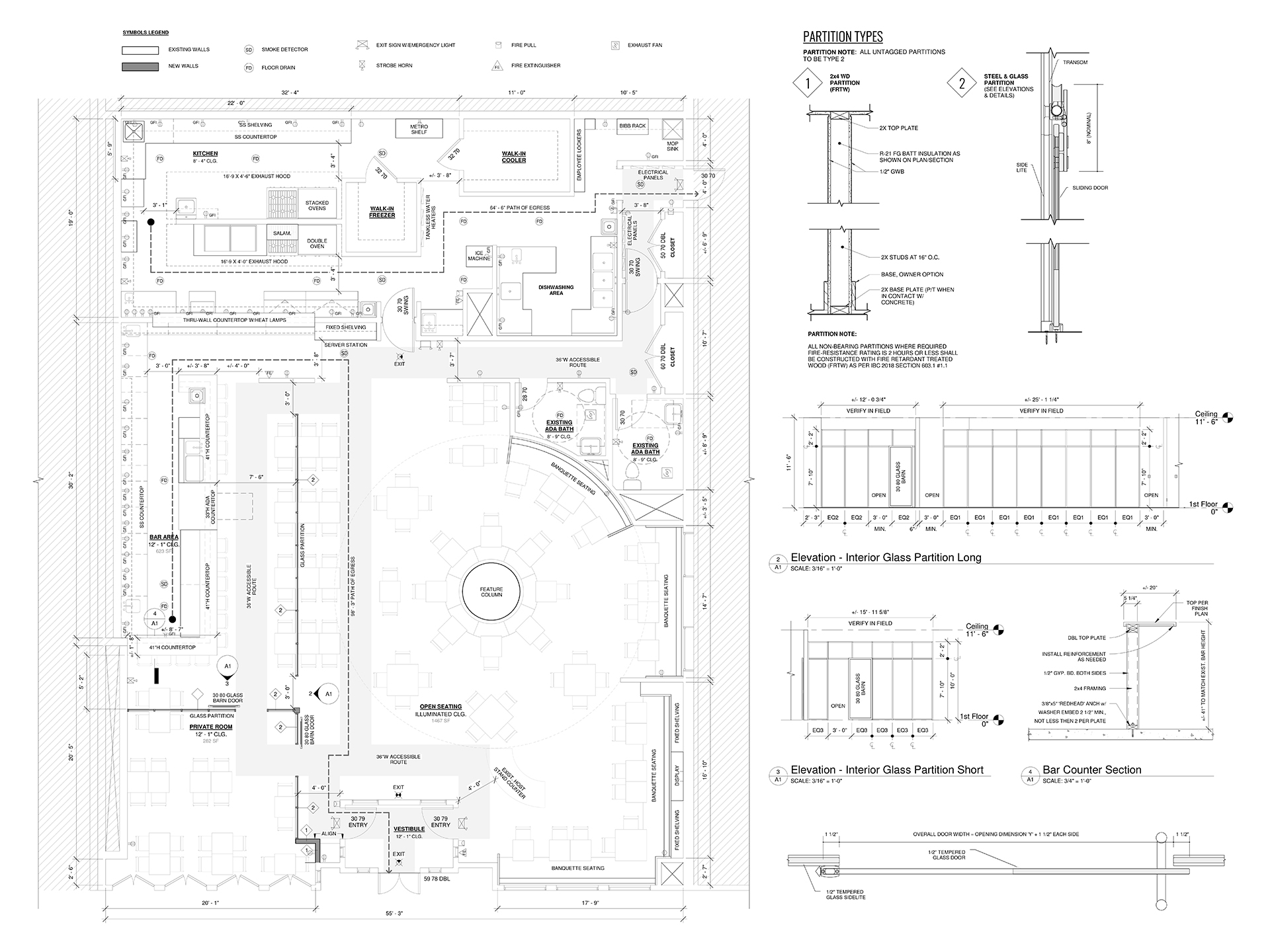
Project Description
Detailed permit documentation for a commercial restaurant and bar in Philadelphia, PA, tailored for public use and regulatory compliance. The drawings outlined ADA and egress compliance, finish plans, electrical/lighting layouts and plumbing diagrams to streamline the approval and construction phases.






