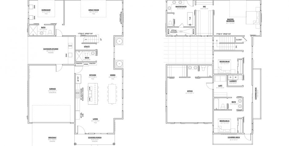
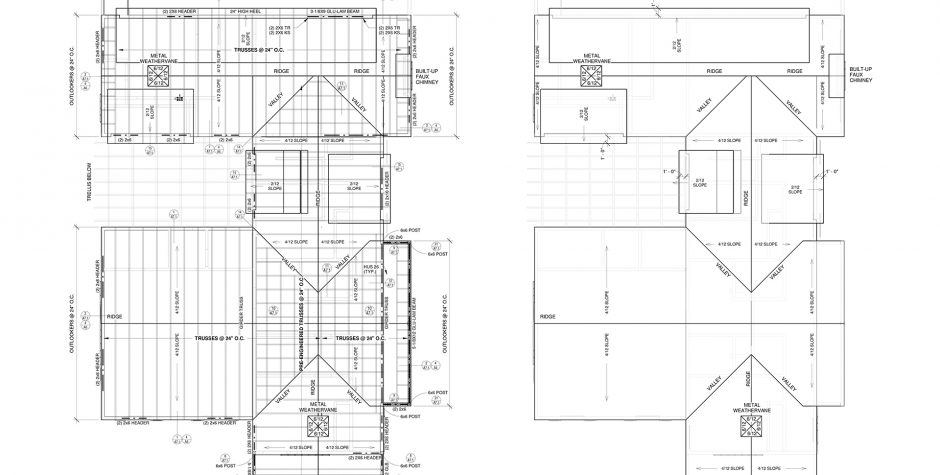
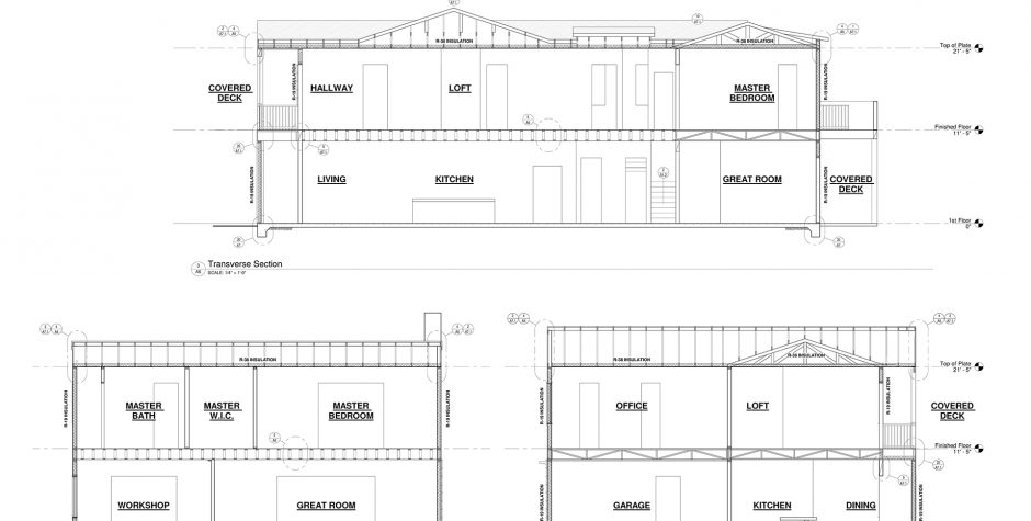
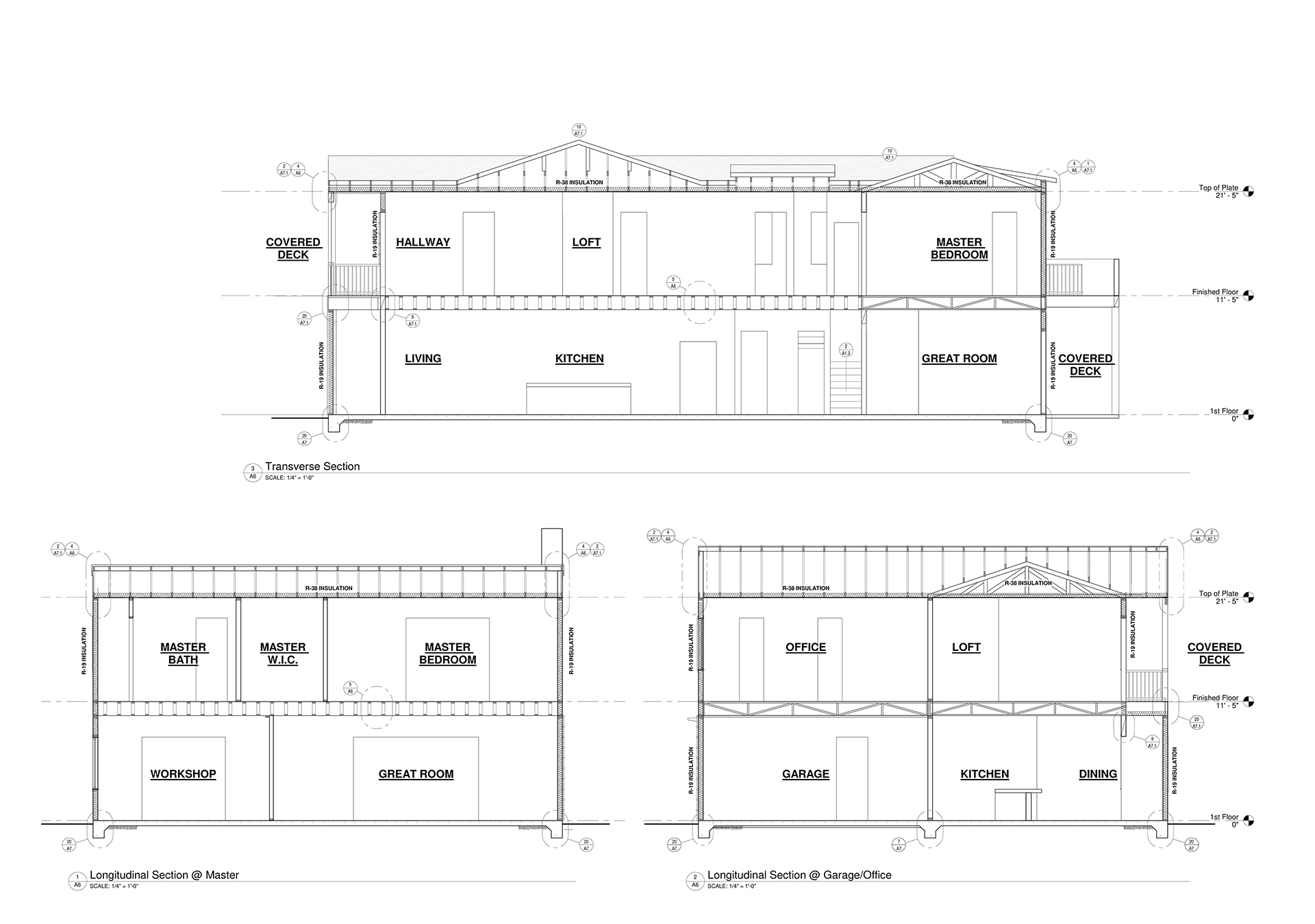
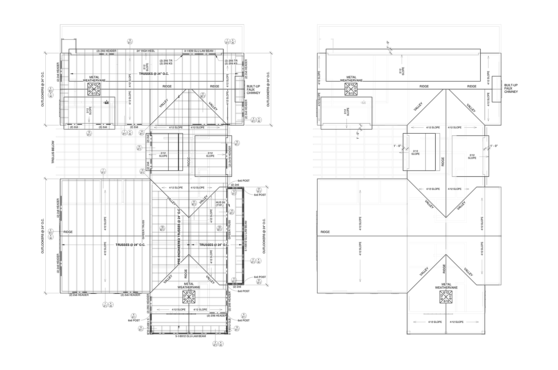
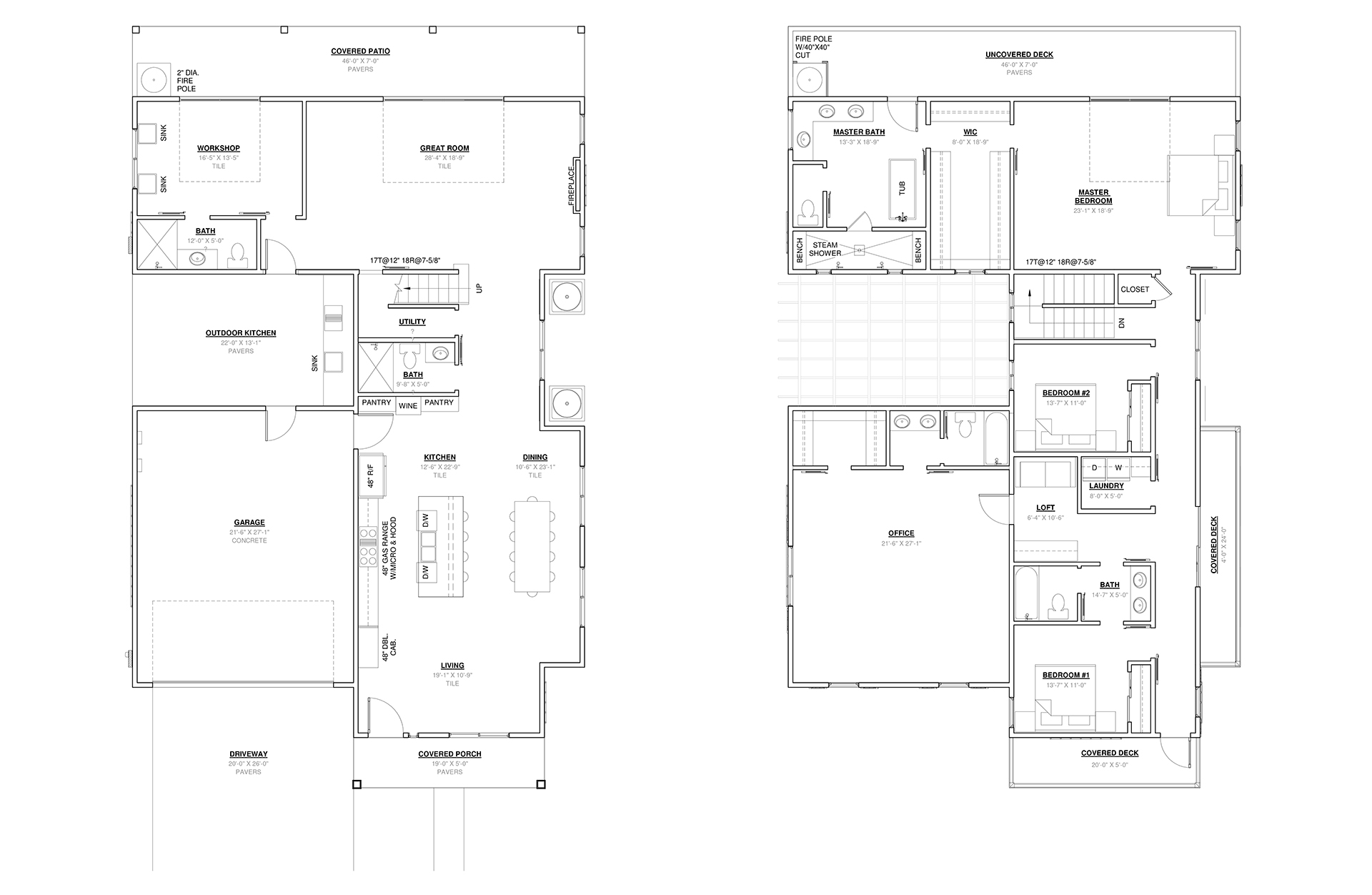
Project Description
Development of 3D models and detailed plans for a large residential multi-use property in Queen Creek, AZ, emphasizing thoughtful spacious design and functional construction documentation. The project incorporated site-specific features to blend indoor and outdoor spaces effectively.









