Project Description
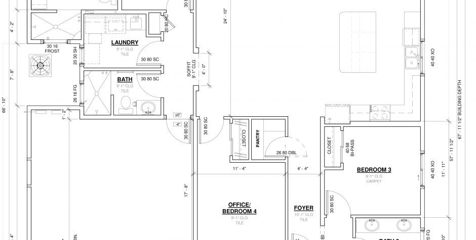
Architectural design and full construction documentation for a single-story Southwest-style residence in Arizona, constructed with concrete foundation, wood framing and traditional stucco exterior. A comprehensive permit-ready drawing set was produced to meet all local codes and municipal requirements. The design captured authentic regional character through open floor plans, deep overhangs and seamless indoor-outdoor flow tailored to the desert environment.






